
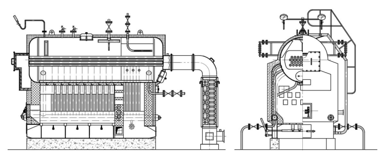
TGBOILER DZH biomass steam boiler is a single-drum, horizontal shell-type unit with a mixed fire-tube/water-tube design, threaded fire tubes, and a three-pass heating structure. Its fixed small-flake chain grate supports diverse biomass fuels, reduces fuel leakage, and allows easy grate replacement. The DZH series offers strong combustion, high efficiency, and stable performance. With optional advanced dust-control systems—such as water-film collectors, bag or electrostatic filters, and double-tower desulfurization—it can achieve low emissions. This reliable and economical boiler is widely used in food, textiles, paper, brewing, packaging, plywood, building materials, and chemical industries across Southeast Asia, Central Asia, and Africa.


The entire DZH biomass boiler system includes the grate, boiler body, economizer, dust collector, flue, air ducts, induced draft fan, blower, slag remover, loading machine, water pump, and deaerator.

1. Grate – Configurable based on fuel properties, including fixed, chain, or moving grates, with chain options such as flaker, belt, and bar types.
2. Air Pre-heater – Optional for high-moisture fuels to use flue gas heat, improving combustion and reducing losses.
3. Water Treatment – Optional softening or RO systems based on water quality.
4. Secondary Air – Optional to reduce incomplete combustion loss and improve efficiency.
5. Control Cabinet – PLC or touch-screen available; electrical brands optional.
6. Variable Frequency – Pumps and fans can use frequency control to save energy and reduce operating cost.
7. Shell Color – Boiler casing color customizable for appearance.
DZH Biomass Fired Steam Boiler:
Model |
Rated Steam Capacity (t/h) |
Rated Steam Pressure (MPa) |
Rated Steam Temperature (℃) |
Rated Feed-water Temperature (℃) |
Fuel Consumption(kg/h) |
Overall Dimension L*W*H(mm) |
Thermal Efficiency (%) |
DZH 0.5-0.7/1.0-AII |
0.5 |
0.7/1.0 |
170/184 |
20 |
76 |
3228×2000×2656 |
80 |
DZH 1-0.7/1.0/1.25- AII |
1 |
0.7/1.0/1.25 |
170/184/194 |
20 |
150 |
4108×2200×2915 |
|
DZH 2-0.7/1.0/1.25- AII |
2 |
0.7/1.0/1.25 |
170/184/194/204 |
20 |
301 |
4700×2300×3270 |
|
DZH 4-1.25/1.6- AII |
4 |
1.25/1.6 |
194/204 |
20 |
602 |
5600×2550×3563 |
|
Note: Parameter is for reference only, if any changes should follow the factory technical data. | |||||||
DZH Biomass Fired Hot Water Boiler:
Model |
Rated power (MW) |
Rated |
Supply water |
Return water |
Size (mm) |
Weight (t) |
pressure(Mpa) |
temperature(℃) |
temperature(℃) |
||||
DZH0.35-0.7/95/70 |
0.35 |
0.7 |
95 |
70 |
3200x2000x2600 |
8 |
DZH0.7-0.7/95/70 |
0.7 |
0.7/1.0 |
95 |
70 |
4100x2200x2900 |
12 |
DZH0.7-1.0/95/70 | ||||||
DZH1.4-0.7/95/70 |
1.4 |
0.7/1.0 |
95 |
70 |
4700x2300x3200 |
15 |
DZH1.4-1.0/95/70 | ||||||
DZH2.8-0.7/95/70 |
2.8 |
0.7/1.0 |
95 |
70 |
5600x2500x3500 |
22 |
DZH2.8-1.0/95/70 | ||||||
Note: 1. Parameter is for reference only, if any changes should follow the factory technical data. | ||||||
Why Choose Us?
Founded in 1976, Taiguo Boiler is National Designated A-Class Boiler Manufacturer to produce Class A boilers and D1/D2 pressure vessels, offering customized solutions from design to installation and commissioning, including boiler room planning.

Project Cases
Our boilers are exported to over 60 countries across Asia, Europe, Africa, and South America, trusted by customers worldwide. With extensive export experience, we deliver efficient, tailored solutions and are renowned for our product quality and customer service.

For all inquiries, please fill in the form below (* are required) to send us a brief message, and we will get back to you as soon as possible.